Bac Ninh province to cooperate with Korean enterprises in developing urban project
Latest
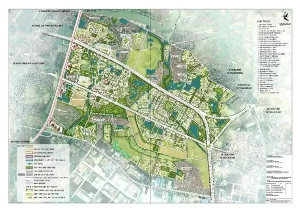
![]() |
| Bac Ninh city to develope an urban area in the southeastern part. (Source: diendandothi.kinhtedothi.vn) |
At the working session, Tuan highlighted the growing ties between Vietnam and the Republic of Korea (RoK), stressing that the strategic comprehensive partnership between the two countries provides a solid foundation for deeper collaboration. He noted that LH, a leading RoK government-owned corporation, is a trusted and valued partner of the province.
The Chairman said that Bac Ninh province is shifting from an industrial focus to a more balanced approach that includes attracting investment in urban development, commercial centres, education, services, and research and technology transfer.
He added the province has already drawn in 7.5 billion USD in investment in these sectors and expects to mobilise another 8 billion USD in the near future. For prioritised projects, the provincial authorities plan to implement a "green lane" mechanism to expedite administrative procedures.
Tuan shared that Bac Ninh is finalising steps for the mergence with neighbouring Bac Giang province. The new administrative unit will be nearly five times larger in terms of area and more than double in terms of population, offering significant potential for further development.
He expressed his confidence that LH, with its expertise and experience, would swiftly implement the urban area project, contributing to a modern urban landscape for the province.
For his part, Lee said this would be LH’s first urban development project in Vietnam. He also affirmed the corporation's commitment to deploying top experts and resources to ensure the project becomes a symbol not only for Vietnam but also in the world.
The feasibility study for the project has been completed, and LH is in the process of finalising investment approval documents for submission to relevant authorities.
As a state-run enterprise under the RoK Government, LH is one of the country’s top developers of urban and industrial zones, providing around 120,000 apartments annually./.
